Объявление: Продам торговое помещение 181 кв.м.
  • Домой Домой
  • Разместить объявление Разместить объявление
  • Регион:
    Все регионы [Поменять]
Домой >> Россия >> Нижегородская область >> Нижний Новгород >> Недвижимость >> Продажа недвижимости >> Коммерческая недвижимость (офисы, помещения)

Продам торговое помещение 181 кв.м.

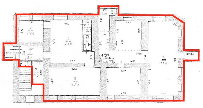
Продам торговое помещение общей площадью 181 кв.м., расположенное по адресу улица Ильинская, д 43. Занимает весь первый этаж жилого дома, красная линия. Состоит из двух отдельных помещений, которые можно объединить в одно. Два отдельных входа, своя котельная, два санузла. Предоставляемая мощность 15 кВт. Во дворе расположена дополнительная парковка. Помещение идеально подойдет под медицинский центр или торговую деятельность. Высокий пешеходный и автомобильный трафик. Отличная возможность размещения наружной рекламы. Рассматривается вариант продажи двух помещений по отдельности.
Без комиссии агентству! Не упустите перспективное место для Вашего бизнеса!

Регион: Нижний Новгород
Телефон: +79200778107, +79534156359
Вебсайт: http://www.rgrnn.ru

 Приложенные картинки 
Объявление но. 925444
Срок объявления:
от 05 окт 2016, 23:59
до 21 янв 2026, 23:59
Всего просмотров: 1269
Пометить объявление как:
, , ,

Правовая оговорка: Администрация не несет ответственность за стиль и содержание объявлений. Если предложение, содержащееся в объявлении, нарушает законы РФ, международные законы, либо моральные, этические или общественные нормы, мы просим Вас сообщить нам об этом воспользовавшись ссылкой "Сообщить о нарушении" которая находится в правой колонке на странице объявления. Правила пользования сайтом

Связаться с администрацией сайта